OBJETIVOS
ANTECEDENTES
QUIENES SOMOS
NOTAS
CONTACTO |
|
El presente trabajo aporta
elementos conceptuales e instrumentales para la conformación
de un espacio público barrial para ser habitado, promotor
de encuentro, del fortalecimiento de las redes sociales y de
la producción de actividades colectivas.
Es necesario erradicar, ante
todo, el prejuicio de un espacio público vacío,
indiferente y sin programa, concebido solo como vía circulatoria
o espacio verde. Apuntamos a una visión contenedora de
la vida comunitaria, abierta al uso múltiple de la población.
A una red barrial de lugares programados, amoblados y climáticamente
protegidos, con los mismos valores que se utilizan en arquitectura
para el diseño de los espacios habitados.
Buscamos aportar a un consenso interdisciplinario tendiente
a incorporar el concepto de uso social del espacio público
a la legislación urbana, es decir, al Plan Ambiental,
Ley de Comunas y Código de Planeamiento Urbano.
En el texto se formulan ideas concretas para la instrumentación
de estos objetivos. Se trata de una propuesta abierta, pensada
para servir de base a un debate en el que se vayan ajustando
y ampliando sus contenidos. Con ese fin se han ordenado los
temas en cinco capítulos, desarrollados cada uno en la
forma de normas comentadas, lo cual permitirá la inclusión
de nuevos conceptos sin desarticular la propuesta.
INTRODUCCIÓN
La gregariedad es condición humana. Desde siempre la población estableció
sus actividades sociales y de intercambio en las calles y plazas
de su comunidad.
Hoy, el uso social del espacio urbano ha sufrido un proceso degenerativo.
La calle, sometida por el transito polucionante de los vehículos,
ha quedado reducida a las veredas, angostas fajas de refugio donde
los peatones, transformados en flujos, se mueven o detienen al compás
del semáforo. En igual sentido, también las plazas, nacidas como
escenario de la vida colectiva, fueron redefinidas como espacios
verdes y despojadas de su condición convocante.
Solo han transcurrido nueve décadas desde que el automóvil irrumpió
masivamente en las calles de la ciudad, desalojando a la población
y alineándola contra las fachadas. El efecto fue disociador. Las
redes sociales languidecieron porque, si bien las relaciones entre
vecinos se ¨tejen¨ en los edificios de la comunidad, se ¨enhebran¨
previamente en el espacio barrial.
Es vital recuperar el uso de los ámbitos colectivos. No podemos
aceptar resignadamente la pérdida del territorio de la comunicación
y la convergencia. Está en juego la salud psicofísica de la población,
que se ha deteriorado ante el desvanecimiento de la vida comunitaria.
En esta era de socialidad virtual la proximidad y el encuentro adquieren
una significación relevante, incluso terapéutica, en oposición al
carácter evanescente de los vínculos interpersonales frente al monitor.
No habrá integración social sin espacio público. Estructurar
la comunidad y producir su espacio físico son dos aspectos inseparables
de la misma cuestión.
Ampliar los espacios físicos del encuentro,
crear proximidades y estimular la participación, son los nuevos
objetivos. Es el ¨know how¨ de la ciudad democrática. Quizás hoy
estemos construyendo la ciudad, pero no estamos construyendo los
espacios de la socialidad urbana.
No podemos (ni queremos) deshacernos de los automóviles, que ya
rondan los 750 millones de unidades en el planeta, con proyección
a 1200 millones para la próxima década. Ya son parte de nuestra
vida.
Las soluciones podrán buscarse, en ciertos casos, en la reconquista
de la calzada o en la eliminación de un carril, pero una estrategia
urbana abarcativa deberá proponer la incorporación, gradual y sostenida,
de nuevos lugares de uso peatonal, obtenidos mediante la cesión
de espacios de vereda por los edificios a construir; la anexión
transitoria de terrenos baldíos; la expansión de las veredas frente
al ingreso de los edificios de uso colectivo; la reconfiguración
de las plazas para incrementar sus áreas secas; la peatonalización,
transitoria o permanente, de calles principales de los centros barriales
y el aprovechamiento de los sectores remanentes o desactivados del
tejido urbano. Naturalmente, la lista continúa.
Esta claro que la sola disponibilidad de espacio público no será
suficiente para el florecimiento de la vida colectiva.

El espacio exterior convoca espontáneamente
a los miembros de la comunidad. |

La gregaridad es condición humana. Desde
siempre la población estableció sus actividades sociales en
el espacio colectivo. |
Se necesita
la motivación de los habitantes, que tiene relación con su sentido
de pertenencia barrial y con las convocatorias y el apoyo del gobierno
municipal y de las organizaciones locales. Pero, recíprocamente,
estos intentos no arraigarán si carecen de la contención que le
brinde una espacialidad propicia.
¿Porqué referimos esta cuestión a la escala del barrio?
Las escalas urbanas menores son las mas propicias para el establecimiento
de vínculos comunitarios. Otras dimensiones demográficas y territoriales
como el país, la región y las grandes ciudades, se refieren a conjuntos
solo abarcables desde una visión satelital. Se trata de un enfoque
macro, imprescindible para la planificación, pero carente de contenido
vivencial para los habitantes. Las escalas descendentes, ciudad
menor, barrio y vecindario, son las que se refieren a espacios concretos
y vividos.
Vale remarcar que siendo el barrio el módulo físico y social con
que se organiza la mayor parte del territorio urbano, la acumulación
de acciones micro urbanísticas dirigidas a ampliar y habilitar el
espacio público barrial, conducirán gradualmente a la reconversión
de toda la ciudad en hábitat cotidiano.
Cuatro definiciones para la comprensión
de la vida barrial:
Barrio: sector diferenciado dentro del área urbana, que tiene
la dimensión espacial, demográfica y social de una ciudad pequeña.
Es el mayor sector urbano cuya dimensión puede ser reconocida y
frecuentada por sus habitantes y cuya población, por compartir una
identidad local y otros rasgos culturales, puede ser definida como
comunidad. En el seno del barrio los vecinos pueden reunirse y opinar
por si mismos sin necesidad de delegarse en representantes, como
ocurre en las escalas mayores. Es por esta razón que la democracia
urbana solo puede florecer desde la proximidad que ofrece la escala
barrial. Sin barrios hay aglomeración pero no vida colectiva.
Identidad: La identidad supone compartir la pertenencia a
un conjunto social diferente. Los habitantes del barrio están unidos
por la proximidad, los afectos recíprocos, el territorio compartido,
los símbolos locales, la historia del lugar y las problemáticas
y proyectos en común. Estas relaciones despiertan solidaridades,
descubren afinidades y generan acciones en común.
El territorio barrial es sentido como terruño, con un arraigo que
mucho tiene que ver con el sentimiento de patria.
Participación: Es la inclusión del habitante, su tiempo y
su persona en la vida comunitaria. Contiene la energía que motoriza
las actividades colectivas, que emana del sentimiento de comunidad
y de compartir necesidades y proyectos.
Apropiación: Es el volcamiento de la acción al espacio público.
Se produce cuando un grupo se instala en el mismo para desarrollar
de una actividad. Al apropiarse, los grupos generan un nuevo acontecimiento
que se agrega a la historia del lugar. Cuando hay apropiación
el espacio está vivo.
1 - AMPLIACIÓN DE LA VEREDA MEDIANTE LA INCORPORACIÓN
DE NUEVOS ESPACIOS DE USO COLECTIVO
La calle es un espacio circulatorio cuyos bordes peatonales,
las veredas, no solo son transitados, sino también habitados por
la población.
Usualmente se percibe la calle como un corredor longitudinal conformado
por la calzada, espacio de predominio vehicular; las veredas franjas
de predominio peatonal; las esquinas, puntos de cruce y confluencia
y la sucesión de edificios frentistas.
En una visión más analítica se observa que en la vereda se pueden
diferenciar tres franjas virtuales:
La primera incluye el cordón y no es circulable. Contiene
todas las actividades e instalaciones limítrofes con la calzada:
arbolado, parquímetros, columnas de iluminación, paradas y colas
de transporte público, cabinas telefónicas, papeleros, semáforos,
puestos de venta de diarios o flores y el espacio de apertura
de las puertas de los automóviles. Entre árbol y árbol suelen
establecerse pequeños grupos, mesas y sillas de locales gastronómicos
y estacionamientos de motos y bicicletas. Puede estimarse su ancho
en 1,50mts.
La segunda franja, la central, constituye el corredor circulatorio,
que debe quedar expedito permanentemente. Para calles barriales,
según la intensidad de los flujos, puede estimarse su ancho entre
1,50mts y 2,50mts.
La tercera franja, recostada sobre las fachadas, contiene
diversas circunstancias de la vida callejera, poco compatibles
con la circulación peatonal: carteleras, vidrieras, mesas, sillas
y sombrillas de locales gastronómicos, grupos de conversación,
etc.
Particularmente esta franja contiene la dualidad entrada/salida
de los edificios, es decir, el conjunto de los lugares que articulan
el espacio público con el espacio construido.
Esta es la franja mas social de la vereda. La única con capacidad
de ser ampliada mediante el agregado de ensanches hacia el interior
de la manzana. Esta aptitud la define como una categoría de trabajo
relevante para cualquier estrategia de recomposición del espacio
público peatonal.
La esquina, finalmente, es un espacio de asociación tipológico
y calificado, el mas frecuente del tejido urbano. Una ampliación
del espacio de la vereda con identidad y nombre propio. El mas
utilizado entre los ámbitos del espacio público. Comparte con
la tercera franja la posibilidad de ampliación hacia el interior
de la manzana.
1-1 Incorporación a la vereda de espacios internos de la manzana
(ver modalidades compensatorias) **
Para la instrumentación de esta norma será necesario
delimitar previamente el área central del barrio a los efectos
de definir los tramos residenciales y centrales de cada calle,
que serán objeto de reglamentaciones diferentes.
- a- Retiros en planta baja de los edificios esquineros
(de cualquier dimensión) **
La ampliación de
la esquina representa un aporte estratégico, no solo por
sus características espaciales sino, porque su repetición
sistemática la difunde a toda la trama urbana.
Considerando que existen cuatro esquinas en cada cruce
de calle, hay buenas posibilidades de que la acumulación
se desarrolle a buen ritmo y que sus efectos trasciendan
en el corto plazo. |

La esquina es un espacio de asociación
tipológico, el más repetido del tejido.
Su ampliación representa un aporte estratégico porque
su difusión en toda la trama urbana. |
- b- Retiros en planta baja de edificios entre medianeras
(no menores de 15mts. de frente) **
Ensanches de hasta 2mts. de profundidad podrán contener lugares
de reposo para peatones o pequeños grupos. Profundidades mayores
permitirán organizar patios de vereda con usos y equipamientos
a determinar en cada caso.
- c- Habilitación de patios urbanos en fondos de manzana
con acceso por pasaje peatonal
(dimensiones a determinar) **
Si bien es una posibilidad poco frecuente, resultará de gran
valor para la vida del Centro Barrial. Los usos mas apropiados
se determinarán en cada caso.
- d- Habilitación de pasajes peatonales con salida a calle
opuesta o lateral
(dimensiones a determinar) **
Enriquecen la red peatonal y el carácter de paseo de las calles
centrales. Los usos mas apropiados se determinarán en cada caso.
- e- Incorporación transitoria de sectores de terrenos baldíos
**
La presencia de tapiales o cercos de cierre perjudica la continuidad
ambiental de las calles de centrales. Inversamente, su anexión
al espacio de vereda resultará muy valiosa para la formación
de patios urbanos. Según los casos, se podrá optar por la incorporación
total o parcial del terreno.
** Modalidades compensatorias
en referencia al item 1.1
Se propone una escala de retribuciones compensatorias
expresadas como incremento de superficie máxima edificable,
aplicando criterios de tasación relacionados con el valor
de uso de las áreas cedidas. Estimamos este factor, según
los casos, entre 3 y 10 veces la superficie cedida.
Valorando la importancia de ampliar el espacio público
en el centro barrial, sugerimos la siguiente escala de tasación,
en orden descendente:
Calles del centro barrial
1º Terrenos en esquina
2º Fondos de manzana y pasajes públicos
3º:Terrenos no esquineros
Calles residenciales
4º Terrenos en esquina
5º Terrenos no esquineros, fondos de manzana y pasajes públicos
En el caso de los terrenos baldíos la modalidad retributiva
podrá plantearse en la forma de ventajas impositivas ajustadas
al plazo de la cesión. |
1-2 Ampliación de la vereda en el acceso a los edificios de uso
colectivo:
El umbral es el origen y el destino del flujo
peatonal, el punto germinal donde se originan y finalizan los
itinerarios de la calle. Constituye el mas pequeño y habitual
de los espacios urbanos de asociación, el que contiene las instancias
sociales de recepción o despedida en un espacio y un tiempo que
se extienden a ambos lados de la puerta de entrada.
La ampliación de la vereda frente a los ingresos surge como necesidad
y expresión de esta característica, especialmente significativa
en los edificios de uso colectivo.
- a- Configuración de patios de vereda en el acceso a los
edificios oficiales (escuelas, hospitales, oficinas públicas,
bibliotecas municipales, etc)
Deberá recederse el sector de la planta baja previo al ingreso,
en una profundidad suficiente para configurar un patio de vereda
dedicado a la reunión y el descanso de público y peatones, dimensionándolo
según el flujo de los ingresos en cada caso.
- b- Configuración de ensanches de vereda en el acceso a
los edificios privados de uso colectivo (academias, clubes,
centros sociales, edificios de vivienda colectiva, etc.)
Se deberá receder el espacio de planta baja, previo al ingreso,
en la dimensión necesaria para contener pequeños grupos sociales
al margen de la circulación peatonal. Se estima una profundidad
mínima de 2mts.
1-3 Incorporación de lugares residuales del tejido barrial para
ser habilitados como plazas o patios urbanos.
Se requiere previamente un análisis pormenorizado del
tejido barrial para detectar sectores de calzada fácilmente transferibles
al uso peatonal (rotondas, calles cortadas, costados de vías férreas,
etc.)
2 - PRESERVACIÓN MORFOLÓGICA Y AMBIENTAL DE LAS CALLES BARRIALES
El caminante de la calle percibe una altura o techo
virtual formado por las copas de los árboles y por el perfil superior
de las fachadas. Esta altura, entendida como magnitud, se corresponde
aproximadamente, con el denominado nivel de basamento.
En la mayoría de los barrios este nivel está sobrepasado por edificios
de vivienda colectiva, hecho lamentable, porque la altura de las
calles es, sin duda, la característica física mas relevante del
ambiente barrial.
El desprecio por la identidad local con que se manejan los negocios
inmobiliarios es vivido por los habitantes como la usurpación
de un patrimonio colectivo, que da soporte espacial al sentido
de pertenencia comunitaria. Se trata de la destrucción prepotente
de un bien ambiental en beneficio de intereses particulares.
La mutación progresiva del nivel de basamento conduce a la destrucción
de las redes sociales, no tanto por la llegada de nueva población,
que puede asimilarse e inclusive enriquecer la vida comunitaria,
sino porque la pérdida del entorno histórico cancela la identidad
local.
2-1 Configuración del perfil de la calle
- a - Determinar para cada calle la altura
máxima del basamento, en armonía con la edificación existente.
Se sugiere, como criterio de referencia, una altura de basamento
= ancho de calle / x ; siendo x = 2 para calles residenciales
y 1,5 para calles centrales.

La construcción
del basamento preserva el perfil barrial de la calle excluyendo
los volúmenes de mayor altura.
- b - Determinar un fuerte retroceso
de los volúmenes que superen la altura del basamento, en función
del ancho de la calle y de la altura del volumen a construir.
Por arriba del basamento se sugiere un retiro mínimo de 4mts.
y desde allí, no sobrepasar una tangente de 30º partiendo de
su borde superior.
- c - Establecer para los edificios de
altura obligatoriedad de construir el basamento en todo el frente
del terreno.
El basamento continuo asegura un primer plano que desprende
los volúmenes altos de la visión peatonal.
En el caso de las torres, la separación de las medianeras discontinúa
las fachadas, originando corredores de viento que provocan el
vaciamiento del lugar.
2-2 Preservación, ordenamiento y puesta en valor del carácter
actual de la calle.
Se propone definir los tratamientos urbanos que caracterizan
a cada calle respetando y unificando sus rasgos preexistentes
(solados, árboles, columnas de iluminación, etc.), alentando la
inclusión de nuevas imágenes y elementos concordantes.
3 - RECONFIGURACIÓN DE LAS PLAZAS BARRIALES, ENTENDIDAS COMO
ESPACIOS DE LA VIDA COMUNITARIA
La plaza barrial es el principal escenario de la vida
comunitaria. La característica mas intrínseca de un escenario
es la versatilidad, es decir, su capacidad de contener acontecimientos
diversos. Desde esta definición resulta claro que las plazas barriales,
reconsiderando su caracterización como espacio verde, deben ser
adaptadas a actividades múltiples, no siempre predecibles e incluso
de concurrencia numerosa (debates, conferencias, recitales, deporte,
asambleas, juegos, exposiciones, ferias, representaciones, cine,
reuniones, etc.)
Vale señalar que, desde un punto de vista político, el arraigo
popular de la plaza, su alto nivel de exposición pública y su
carácter convocante, proporcionan un marco de mérito excepcional
y fácilmente manejable, inclusive en la difícil cuestión de la
seguridad.
3-1 Reprogramación de la plaza barrial como Centro Comunitario
(PCC).
En las ciudades satélites europeas, construidas a nuevo
para organizar los conurbanos después de la destrucción de las
ciudades durante la Segunda Guerra Mundial, la inclusión de centros
comunitarios resultó un aporte fundamental para la integración
de las nuevas comunidades, al proveerlas de lugares deportivos,
sociales, recreativos y culturales.
La mayoría de estas funciones pueden ser contenidas por nuestras
plazas barriales, merced a un clima benigno que nos permite, durante
la mayor parte del año, un buen desarrollo de las actividades
al exterior. La incorporación de 500 ó 1000mts2 cubiertos reducirá
imperceptiblemente la superficie libre de la plaza, pero la dotará
de nuevas funciones que la fortalecerán como centro indiscutido
de la vida comunitaria.

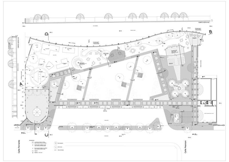
Proyecto de la Plaza Crisol, San Fernando,
Provincia de Buenos Aires. La plaza como centro comunitario (PCC).
Su amplio programa incluye escenario cubierto, espacios de reunión
grupal y familiar, centro de personas mayores, etc.
- a- Incorporación de áreas cubiertas.
El programa de la PCC incluye un escenario techado de uso múltiple
con lugar para espectadores, baños públicos, depósito de elementos
y buffet, además de dos espacios cerrados, independientes entre
si, uno para adultos mayores y otro para adolescentes y jóvenes,
ambos con expansión independiente al exterior.
Respecto de los jóvenes, vale señalar que constituyen una fuente
potencial de energía para la vida colectiva. La inserción comunitaria
de adolescentes y jóvenes, en oposición a quienes prefieren
verlos marginados del espacio público por su tendencia al desborde,
debe ser vista como imprescindible.
La cuestión consiste en compatibilizar los procesos de constitución
de la personalidad, propios de la edad, con la maduración experiencial
de la conciencia de pertenecer a un conjunto social.
Los jóvenes precisan un lugar propio, insertado en el espacio
colectivo, en el cual puedan desarrollar sus actividades, inclusive
convocando a la comunidad.
- b- Incorporación de nuevos pisos secos de uso flexible
La multiplicidad de actividades que se realizan en la PCC requieren
un incremento del piso seco. Esto no significa erradicar la
vegetación, sino controlarla a nivel del solado, elevándola
masivamente hasta la copa de los árboles sin renunciar al su
carácter de pulmón urbano. De este modo el nivel cero queda
disponible para usos diversos, protegido por un techo arbóreo
que le proporciona sombra y frescura.
- c- Provisión de las instalaciones e infraestructuras necesarias
para el buen desarrollo de las actividades.
La comodidad sostiene las actividades de la plaza. Las carencias
de mobiliario, iluminación y protección solar se traduce en
incomodidad y cansancio, conspirando contra su desenvolvimiento
y desalentando su reiteración.
Es indispensable proveer los amoblamientos, techados de sombra
y luminarias necesarios para el mejor desarrollo de actividades
múltiples.

Escenario en la esquina de la plaza, para
reforzar las actividades en la calle central del barrio.

Elemento escultórico
para cartelera en la entrada principal a la plaza, apunta a la comunicación
gráfica.
3-2 Integración entre la plaza y sus calles
perimetrales.
Cuando nos referimos al espacio de la plaza estamos
incluyendo las calles perimetrales y las fachadas frentistas,
que con su población, comercios y servicios, alimentan el nivel
de concurrencia.
Todas las plazas urbanas deben ser objeto de una zonificación
especial, que las jerarquice respecto del tejido circundante,
incluyendo mayor altura para el nivel de basamento y, donde fuera
posible, el techado de las veredas del perímetro construido.
- a- Gestionar el traslado de edificios públicos y comunitarios
al perímetro de plaza.
Estos edificios, a la vez que incrementan la afluencia de usuarios
al área se jerarquizan con tal ubicación, generándose un plus
de valor en beneficio del conjunto.
En particular resultará de gran interés la instalación de una
Casa del Barrio en el perímetro de la plaza.
- b- Fomentar la instalación de comercios y servicios en
las plantas bajas de los edificios frentistas.
La ocupación de las plantas bajas con nuevos equipamientos cuyas
actividades se derramen sobre las veredas (bares, salas de espectáculos,
comercios, edificios públicos, asociaciones comunitarias y otros)
sostienen la vida de la plaza a lo largo del día, inclusive
en horarios nocturnos.
- c- Unificación de las fachadas perimetrales.
La unificación de la envolvente refuerza la coherencia del conjunto.
Se propone para cada plaza establecer normativas morfológicas
que aseguren la coherencia del marco construido (alturas de
fachadas, recovas, colores, toldos, marquesinas, árboles, columnas
de iluminación, etc).
- d- Peatonalización, periódica o permanente, de las calles
perimetrales.
La peatonalización del perímetro habilita la plaza para nuevas
actividades y paseos (deportes, pistas para niños, desfiles,
ferias y competencias de diversos tipos). El eventual avance
del solado hasta las fachadas frentistas, incluso restringiendo
y aun manteniendo la circulación perimetral de vehículos, potencia
significativamente la identidad del lugar.
3-3 Ampliación de veredas en las plazas cercadas.
Las plazas que fueron cercadas manteniendo el ancho
antiguo de las veredas han vaciado de contenidos su espacio exterior.
Se propone desplazar el cerco de estas plazas a no menos de 7mts.
de la línea del cordón, para transformar las veredas en ramblas
de paseo y sostener el carácter convocante del área, inclusive
en horarios nocturnos posteriores al cierre.
Donde ello no fuera posible, se sugiere, transitoriamente, receder
el cerco en las esquinas y sectores de entrada.
4 - REFUERZO DE LOS CENTROS BARRIALES
La vitalidad del barrio depende en gran medida de la
calidad de su centro, es decir, de su atracción como paseo. Una
red de centros barriales calificados supone el enriquecimiento
de las actividades del tiempo libre para todos los habitantes
de la ciudad (turismo intra urbano).
Las calles centrales del barrio se caracterizan por su poder de
convocatoria, producto de la concentración de comercios y servicios,
de la valiosa presencia de artesanos y artistas callejeros, mesas
de café, sombrillas, sillas, etc. y de la organización de ferias,
fiestas y espectáculos, que les confieren vivacidad y atractivo.
Sin embargo las ordenanzas municipales se han encargado por lo
general de frenar o gravar las actividades callejeras, mas preocupadas
por el orden y la recaudación que por la vida barrial.
Como criterio general, entendemos que toda decisión política tendiente
a incluir equipamientos y actividades en el espacio público debe
considerarse beneficiosa, dentro de un marco normativo para la
convivencia.
4-1 Puesta en valor de la imagen del centro barrial
La calificación ambiental de las calles centrales, a
diferencia de las calles residenciales, clarifica la comprensión
de la estructura del barrio y valoriza el sentido del área central.
- a- Enriquecimiento morfológico
Enriquecer detalladamente los repertorios de diseño aplicados
a solados, vegetación, luminarias y mobiliario urbano, así como
la densificación de la imaginería mediante la incorporación
de obras de arte (esculturas, fuentes, muralismo, etc), incrementa
el interés del centro barrial y lo afirma como espacio referente
de la vida colectiva.
- b- Restauración e iluminación nocturna de los edificios
y lugares más significativos
La exaltación de la imagen nocturna de portales, remates de
edificios, fachadas valiosas, patios urbanos, etc, jerarquiza
el patrimonio y genera orgullo barrial, además de incorporar
interés al turismo intra urbano.
4-2 Instalación de los amoblamientos e infraestructuras necesarias.
Equipar los sitios urbanos equivale
a habilitarlos al uso. Tiene la misma significación que hacerlo
con los ámbitos interiores. La noción de mobiliario, que se refiere
al conjunto de elementos que permiten articular la dimensión y
las acciones humanas con el espacio, es decisiva para el éxito
y la reiteración de las actividades.
Complementariamente será necesaria organizar un depósito municipal
de mobiliario urbano y otros elementos para atender los requerimientos
de las actividades de carácter efímero que se desarrollan en los
barrios (tablados, tribunas, asientos, equipos de iluminación,
proyección y sonido, cubiertas desmontables, techados de sombra,
carteleras, etc).

Equipar los sitios urbanos equivale
a habilitarlos al uso. El amoblamiento y la sombra determinan
el asentamiento de los grupos en el lugar.
4-3 Peatonalización, permanente o periódica, de calles del área
cen-tral.
La incorporación de la calzada duplica el espacio peatonal.
La peatonalización incorpora un sentido de paseo lúdico y mas
pausado al movimiento de las calles centrales, estimula los servicios,
el comercio y posibilita el asentamiento de actividades artísticas
y recreativas que estimulan la amenidad.
4-4 Densificación habitacional de las calles centrales
La densidad genera vitalidad y afluencia de población.
Los criterios de densidad residencial que se utilizan habitualmente
para las calles barriales, pueden resultar exiguos para la animación
del centro barrial. Densidades cercanas a los 500 habitantes por
hectárea (aproximadamente 300 habitantes por cuadra incluyendo
el personal de trabajo), asegurarán el éxito de la centralidad,
con buenos niveles de movimiento tanto en horarios diurnos como
nocturnos.
5 - ELEMENTOS PARA LA GESTIÓN INSTITUCIONAL
Las políticas de promoción comunitaria y las de desarrollo
del espacio barrial son dos caras de una misma moneda. El espacio
comunitario quedará débil y propenso al abandono si la vida colectiva
no es estimulada por el municipio, las comunas y las organizaciones
barriales.
5-1 Organización oficial de actividades culturales y deportivas
en los barrios
Será necesario adjudicar los recursos humanos y financieros
para el desarrollo de programas permanentes de actividades culturales
y deportivas producidas por gobierno municipal y en su momento,
por las futuras comunas.
5-2 Apoyo oficial a las actividades promovidas por las organizacio-nes
de la comunidad
Supone la optimización del presupuesto participativo
y la colaboración del municipio en apoyo de las actividades barriales
organizadas por clubes, centros comunitarios, escuelas, parroquias
y otras instituciones barriales.
5-3 Provisión de infraestructuras y servicios de seguridad
Es lamentable tener que reconocer que han aparecido
importantes contradicciones entre la inseguridad y las actividades
en el espacio público.
Estamos atravesando una era marcada por las crisis producidas
por el aluvión de cambios tecnológicos, las grandes migraciones
regionales, el incremento de la drogadicción y la inequidad en
la distribución de la riqueza que emerge del incremento globalizado
de la concentración económica.
La difusión satelital en directo de las imágenes del bienestar
y el consumo en los países desarrollados, detonan fuertes reacciones
de violencia urbana, a veces delictivas, a veces irracionales,
originadas en grandes sectores excluidos y en grupos desintegrados,
provenientes de todo el espectro económico social.
En tales circunstancias es imprescindible asegurar los umbrales
necesarios de seguridad (vigilancia preventiva, iluminación general
del espacio público, monitoreo, etc.) para brindar tranquilidad
a la vida comunitaria en un espacio público que resulta cada vez
mas indispensable para la salud social.
5-4 Formación del personal encargado de trabajar con las comunidades
barriales
La participación es la primera estrategia para programar
el desarrollo barrial. La visión de los habitantes es insustituible
para señalar, evaluar y actuar sobre los conflictos y necesidades
que se busca resolver. A la vez acrecienta su disposición ulterior
a apropiarse de los nuevos lugares e insertarse en la vida comunitaria.
La ciudadanía no siempre está preparada para conocer las implicancias
urbanas y socioeconómicas de sus propuestas, ni las particularidades
de los procesos de gestión necesarios.
Hay que educar a la población en las prácticas participativas
y en las interrelaciones de los problemas barriales con los problemas
urbanos. Estos objetivos suponen, recíprocamente, un replanteo
hacia el interior del Gobierno Municipal para capacitar y motivar
a los equipos que trabajarán con las comunidades barriales.
GRUPO PROMOTOR PARA LA GESTIÓN DEL ESPACIO PÚBLICO
Arq. Carlos del Franco
Arq. Guillermo García Fahler
Arq. Julio Ladizesky
NOTA: el presente documento fue elaborado para la revista "TEMAS CPAU - Nº1 -2008".
Publicación del Consejo Profesional de Arquitectura y Urbanismo de la Ciudad Autónoma de Buenos Aires, Argentina.
VOLVER
|
|